Unsere Wohnung
Beschreibung
Westseite Haus Lieke Deeler
Die Erdgeschosswohnung ist leicht erreichbar. Die Terrasse ist überdacht und grenzt direkt an einen Bereich der Gartenwiese.
Vom gemütlichen Wohnzimmer aus blicken Sie auf Ihre Terrasse und den eingewachsenen Garten.
Im Schlafzimmer erwartet Sie ein bequemes Doppelbett und ein großer Schrank. Das modern eingerichtete Bad macht Lust auf den Tag.
Die Ferienwohnung ist eine helle, sonnendurchflutete Eckwohnung mit großen Fensterflächen.
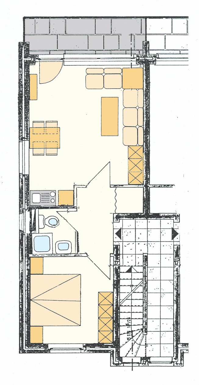
Wohnungsgrundriss
(Einrichtungsbeispiel)
Das bietet Ihnen diese Wohnung

- Vermietung an 1 bis 4 Personen
- 2 Räume, Bad, Flur
- 50m²
- Wohnzimmer mit integrierter Küche und Essbereich
- Doppelbettcouch
- komplett ausgestattete Küche
- Geschirrspülmaschine
- Herd mit Cerankochfeld
- Mikrowelle
- Kühlschrank mit Gefrierfach
- Wasserkocher
- Kaffeemaschine (Filterkaffee)
- Toaster
- Schlafzimmer mit 2 Betten
- Bettwäsche & Handtücher (für Küche und Badezimmer) sind inklusive
- Staubsauger
- Badezimmer mit Dusche
- Fön
- Wäscheständer
- Terrasse zur Westseite
- Gartenmöbel
- TV-Flachbildschirm
- freies WLAN / Internet
- Telefon
- CD / Radio-Kombination
- Bücher
- Nichtraucher-Ferienwohnung
- Mit Rücksicht auf Allergiker sind Haustiere nicht gestattet.
Die Wohnung bietet Ihnen außerdem folgende besondere Annehmlichkeiten
- modernes Badezimmer mit bodennaher Dusche und Handtuchheizkörper
- Schlafcouch: integrierter Klappmechanismus für einfaches Wegräumen/Herrichten
- Wecker/Radiowecker
- Teeservice mit Stövchen
- Eierkocher
- leichte Zugänglichkeit
- Platz auf der überdachten Terrasse
Die Ausstattungsmerkmale nehmen wir ernst, jedoch sind die Angaben ohne Gewähr, beispielsweise wegen eines Defekts kann etwas vorübergehend nicht verfügbar sein. Wir bitten Sie auch mit der Einrichtung sorgsam umzugehen und die Ausstattung z.B. nicht in eine andere Wohnung mitzunehmen.
Zurück zur Preis- und Wohnungsübersicht oder weiter zur Buchungsanfrage.